A louer : Belle villa à Bruxelles / Woluwé-St-Pierre
Beautiful house in Brussels

Tél.:
+32 488 570 634
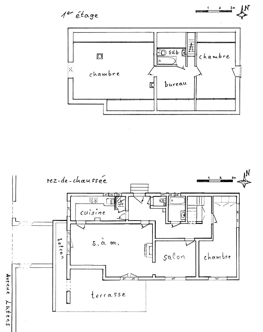
plans
de la maison
Déscription
- Villa spacieuse (150 m²) sur terrain 3,5 ares
- Maison complètement renovée
- Belle situation entre l'Avenue de Tervueren et le Manoir d'Anjou
- A proximité des bois, à proximité de la ville
- Trams 39 et 44
- 5 min. de l'autoroute (Ring)
- Jardin et terrasse au sud
- 3 grandes chambres
- 2 salles de bain, WC sép.
- Vestiaire, grands placards
- Cuisine installée
- Living avec feu ouvert
- Salon (pouvant servir de bureau ou de 4ème chambre)
- Chauffage central au gaz, chaudière à condensation
- Toutes les fenêtres au vitrage isolant (exécution anti-effraction),
volets électriques
- Bonne isolation thermique (toiture : 18 cm d'isolation !)
- Parquet à l'étage, carrelage au rez-de-chaussée
- Portes en chêne
- Grand garage avec porte motorisée, caves
- Libre à partir de septembre 2025
- 2400 € par mois
Description
- Comfortable detached house with garden
- 150 m² to live on (plus basement and garage)
- Entirely refurbished !
- Excellent situation next to Avenue de Tervueren, Joli-Bois and Manoir
d'Anjou
- Close to the forest - close to the town
- Tramways no 39 and 44
- Only 5 min. to the motorway
- Lovely garden and a sunny terrace
- 3 large bedrooms
- 2 bathrooms
- Coat rack and 2 spacious built-in warderobes
- Fully equipped kitchen (incl. dishwasher, oven ...)
- Dining room with an open fire place
- Sitting room (use it as a study room or an additional bedroom, if you
like)
- Central heating with a hi-tech boiler, natural gas
- New windows with isolating glass and burglary protection, electric
blinds
- Floors: ceramic tiles and wood laminate
- Large garage (8m length, electric door) and cellar
- Available as of September 2025
- Monthly rent: 2400 €
Beschreibung
- Geräumige Villa (150 m² Wohnfläche) auf 3,5 ar Grund
- Bester Zustand, vollständig renoviert!
- Beste Lage in Waldnähe und Stadtnähe
- Straßenbahnlinien 39 und 44
- Nur 5 Minuten zur Autobahn
- Hübscher Garten und Terrasse (Südlage)
- 3 große Schlafzimmer
- 2 Badezimmer, sep. WC
- Garderobe in Wandnische, geräumige Einbauschränke
- Voll ausgestattete Küche (Induktionsherd, Backofen, Spülmaschine,
großer Kühlschrank ...)
- Eßzimmer mit Kamin
- Salon (könnte auch als Büro oder viertes Schlafzimmer genutzt werden)
- Gas-Zentralheizung mit sparsamem Brennwertkessel
- Neue Kömmerling-Isolierglasfenster in verstärkter Ausführung
(Einbruchschutz), elektrische Fensterläden
- Pflegeleichte Fußböden: unten Keramikfliesen, oben Laminat-Parkett
- Große Garage (8m) mit elektrischem Tor, Kellerräume
- Frei ab September 2025
- Mietpreis 2400 €